歡迎訪問河南良眾管業有限公司官方網站,專業生產伸縮接頭!咨詢熱線:18638277136
products class
產品分類news
新聞推薦Service Centre
服務中心咨詢報價:18638277136(陳總)
技術指導:13849173666(陳工)
郵箱:hnlzpipe@126.com
國內熱線:0371-64018718
地址:鞏義市西村鎮西村
網址:http://www.bj-explosive.com.cn
公司新聞
講講RS型柔性套管式伸縮器的應用理論
作者:河南良眾管業 來源: 日期:2018/7/3 9:02:02 人氣:14
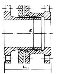
柔性套管式伸縮器描述:
1.
解決了原套管式伸縮器不產生偏角的問題,本產品偏角可達5.85度;
2. 表中長度數值,均系無偏角時的數值;
3. 本伸縮器由橡膠圈密封,伸縮器本身不能承受軸向拉力,一般將它安裝在平直觀點管道上。若靠近彎管或丁字管安裝則應設置管道支墩,以免將伸縮器拉脫而漏水;
4. 本伸縮器中單盤短管可用外徑的鑄鐵直管代替;
5. 法蘭連接尺寸采用GB9113標準;
6. 表中1為安裝長度。
上一篇:
河南廠家柔性套管式伸縮器賊大偏角是多少度
下一篇:
三元乙丙橡膠材質良眾防震伸縮接頭的出口
相關信息

掃二維碼聯系在線客服