锘?!DOCTYPE html PUBLIC "-//W3C//DTD XHTML 1.0 Transitional//EN" "http://www.w3.org/TR/xhtml1/DTD/xhtml1-transitional.dtd">
鍚嶇О錛欱2F鍨嬪弻娉曞叞鏉懼闄愪綅浼哥緝鎺ュご PN10
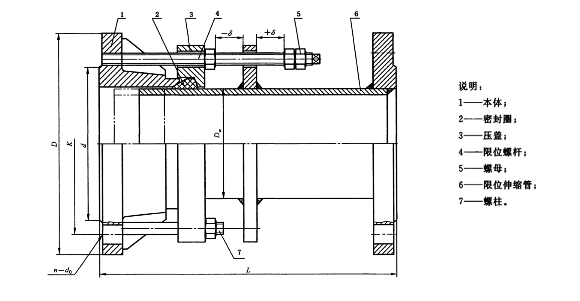
鏍囩錛?/strong>浼哥緝鎺ュご 浼哥緝鎺ュご浠鋒牸 浼哥緝鎺ュご鍘傚 浼哥緝鎺ュご瀹夎
閫傜敤浜庤緭閫佹搗姘達紝娣℃按錛屽喎鐑按錛岄ギ鐢ㄦ按錛岀敓媧繪薄姘達紝鍘熸補錛岀噧娌癸紝婊戞補錛屾垚鍝佹補錛岀┖姘旓紝鐕冩皵錛屾俯搴︿笉楂樹簬205鈩冨崟娉曞叞闄愪綅浼哥緝鎺ュご鑳藉惛鏀剁儹鑶ㄥ喎緙╁艦鎴愮殑杞村悜浣嶇Щ錛岃兘鎵垮彈涓瀹氱殑鍘嬪姏錛堝唴鍘嬶級鎺ㄥ姏銆?

瀹夎鍑嗗
1銆佸弻娉曞叞闄愪綅浼哥緝鎺ュご瀹夎鍓嶏紝搴旀寜鏂藉伐鍥炬鏌ヤ幾緙╂帴澶寸殑鍨嬪紡錛岃鏍鹼紝浼犲姏铻烘潌瑁呯疆絳夛紝搴旂‘璁ょ鍚堣璁¤姹傘?br/>2銆佹寜瀹夎璇存槑涔﹀拰鏂藉伐鍥炬牳瀵瑰弻娉曞叞闄愪綅浼哥緝鎺ュご鐨勪幾緙╅噺鎴栬皟鑺傞噺錛屼嬌鍙屾硶鍏伴檺浣嶄幾緙╂帴澶村湪瀹夎鍓嶅浜庢渶浣崇姸鎬併?br/>3銆佹硶鍏拌繛鎺ョ浠剁殑娉曞叞鍨嬪紡瑕佷笌琛ュ伩鎺ュご鐨勬硶鍏頒竴鑷淬?br/>鏁瘋錛屽畨瑁?/span>
1銆佸畾浣?br/>1.1銆佹墍鏈夊弻娉曞叞闄愪綅浼哥緝鎺ュご鍦ㄥ畨瑁呭墠搴斿鎻掑叆鐨勭瀛愬厛鎸夎姹傚湪綆$鍋氬ソ鎻掑叆闀垮害鏍囪錛岀‘瀹氱璺畾浣嶆椂榪炴帴浠剁殑浼哥緝閲?br/>1.2銆佸畨瑁呯璺腑璁劇疆媯鏌ュ鐨勬儏鍐典笅錛屽弻娉曞叞闄愪綅浼哥緝鎺ュご鐨勫畨瑁呬綅緗簲渚夸簬媯鏌ュ強緇翠慨銆?br/>1.3銆佷嬌鐢ㄥ弻娉曞叞闄愪綅浼哥緝鎺ュご褰撹鏈夋敮鏋舵椂搴斿仛鍒版帴澶翠竴绔潬榪戝浐瀹氭敮鏋訛紝鍙︿竴绔潬榪戝鍚戞敮鏋訛紝鎺ュご涓庢敮鏋剁殑璺濈鍧囧簲涓嶅ぇ浜庣瀛愬寰勭殑4鍊嶃?br/>1.4銆佷嬌鐢ㄥ弻娉曞叞闄愪綅浼哥緝鎺ュご鐨勭閬撶郴緇熷簲姝g‘閫夌敤鍥哄畾鏀灦鍜屽鍚戞敮鏋訛紝鏀灦鐨勬暟閲忓簲涓庣郴緇熺浉閫傚簲錛屾敮鏋跺畨鏀懼湪鍙屾硶鍏伴檺浣嶄幾緙╂帴澶撮檮榪戙?br/>2銆佺剨鎺?br/>2.1銆佺剨鎺ュ墠媯鏌ュ弻娉曞叞闄愪綅浼哥緝鎺ュご鍜岃鐒婃帴綆¢亾綆″彛鐨勫鉤鏁村害錛屽渾搴﹀強鍧″彛錛屽簲絎﹀悎鐩稿叧鏍囧噯瑕佹眰銆?br/>2.2銆佹柦鐒婃椂鍙屾硶鍏伴檺浣嶄幾緙╂帴澶村拰琚剨綆¢亾綆″彛搴斿畾浣嶅浐瀹氾紝涓嶅簲浜х敓浣嶇Щ銆?br/>2.3鍙屾硶鍏伴檺浣嶄幾緙╂帴澶寸殑鏂界剨鎸夊弻娉曞叞闄愪綅浼哥緝鎺ュご鐨勭剨鎺ュ伐鑹鴻瘎瀹氳姹傝繘琛屾搷浣溿?br/>3銆?媯鏌ヨ皟鏁?br/>3.1銆佸弻娉曞叞闄愪綅浼哥緝鎺ュご瀹夎鍚庡簲榪涜媯鏌ワ紝鎵鏈夊帇鐩栧潎搴旂粺涓鎷х揣錛屼繚璇佸瘑灝佸湀鍜屽~鏂欏浜庢渶浣崇姸鎬併?br/>3.2銆佹牴鎹渶瑕侊紝灝嗚ˉ鍋挎帴澶寸殑浼犲姏鏉嗚皟鑺傝嚦鏈夋晥浣嶇疆銆傝ˉ鍋挎帴澶村懆鍥村簲鏈夎凍澶熺殑絀洪棿錛屼互淇濊瘉琛ュ伩鎺ュご鍦ㄨ璁¤寖鍥村唴鑳借嚜鐢辮繍鍔ㄣ?br/>3.3銆佺閬撳悐瑁呬綅緗笉搴旇鍦ㄥ弻娉曞叞闄愪綅浼哥緝鎺ュご涓娿?br/>3.4銆佺‘璁ゆ墍鏈夊鍚戞敮鏋訛紝鍥哄畾鏀灦鏈紜畨瑁呬箣鍓嶏紝涓嶅簲榪涜鍐呴儴鍘嬪姏璇曢獙銆?/p>
閫傜敤浜庤緭閫佹搗姘達紝娣℃按錛屽喎鐑按錛岄ギ鐢ㄦ按錛岀敓媧繪薄姘達紝鍘熸補錛岀噧娌癸紝婊戞補錛屾垚鍝佹補錛岀┖姘旓紝鐕冩皵錛屾俯搴︿笉楂樹簬205鈩?br/>鍙屾硶鍏伴檺浣嶄幾緙╂帴澶寸殑閫夌敤
鍙屾硶鍏伴檺浣嶄幾緙╂帴澶磋兘鍚告敹鐑啫鍐風緝褰㈡垚鐨勮醬鍚戜綅縐伙紝鑳芥壙鍙椾竴瀹氱殑鍘嬪姏錛堝唴鍘嬶級鎺ㄥ姏錛屼笉鑳藉惛鏀剁璺殑瑙掑亸杞侭綾昏ˉ鍋挎帴澶翠笉瀹滃畨瑁呭湪鏈夋í鍚戝拰瑙掑亸杞綅縐葷殑綆¤礬緋葷粺銆?br/>鍙屾硶鍏伴檺浣嶄幾緙╂帴澶磋鏈夐檺浣嶈緗?br/>鍙屾硶鍏伴檺浣嶄幾緙╂帴澶村彲鏄庤鎴栧煁鍦版暦璁俱?br/>鍙屾硶鍏伴檺浣嶄幾緙╂帴澶村彲鐢ㄤ簬鍩嬪湴綆¤礬鍦板熀鍦拌川鏉′歡濂姐佺幆澧冩俯搴﹀彉鍖栬緝澶х殑綆¤礬緋葷粺銆傚煁鍦版垨涓庨榾闂ㄧ瓑璁懼榪炴帴鏃跺簲鏈夋鏌ュ銆?br/>鍙屾硶鍏伴檺浣嶄幾緙╂帴澶撮傜敤浜庡畨瑁呭湪鍊炬枩鎴栫珫鐩寸殑綆¤礬涓?br/>鍙屾硶鍏伴檺浣嶄幾緙╂帴澶寸殑瀹夎鍙垎涓烘槑璁俱佸煁鍦版暦璁懼拰綆℃矡鏁瘋絳夋柟娉?
鍙屾硶鍏伴檺浣嶄幾緙╂帴澶村疁鐢ㄤ簬鑸硅埗綆¤礬緋葷粺鏃訛紝搴旂鍚堟湁鍏寵姹傚拰瑙勫畾銆?br/>鍙屾硶鍏伴檺浣嶄幾緙╂帴澶村疁鐢ㄤ簬鑸硅埗II綰х旱綆$郴鍜孖II綰х緋伙紝浣嗕笉閫傜敤浜庝笅鍒楀満鍚?br/>a錛夌┛榪囧帇杞借埍鍜岀噧鏂欒埍鐨勮埍搴曟按綆$郴
b錛夌┛榪囪揣鑸卞拰鐕冩枡鑸辯殑嫻鋒按鍜屽帇杞界緋匯佸寘鎷┖姘斿拰婧㈡祦綆$郴
c錛夌┛榪囨満鍣ㄥ鎵銆佽揣鑸卞拰鍘嬭澆鑸辯殑鐕冩枡鍜岀煶娌圭緋伙紝鍖呮嫭絀烘皵鍜屾孩嫻佺緋?br/>d錛夊帇鍔涙按闆劇郴緇熶腑鐨勯潪涓繪按綆★紙騫茬緋葷粺錛?/p>
鍏О閫氬緞 錛わ籍 | 綆″瓙澶栧緞 Dw | 娉曞叞榪炴帴灝哄 | 瀵嗗皝闈?/span> d | 鎬婚暱 L | 浼歌妭閲?span style="color: rgb(255, 255, 255); font-family: 寰蔣闆呴粦,Microsoft YaHei; font-size: 20px;">鈻?/span> | 璐ㄩ噺 kg | ||||
娉曞叞 澶栧緞 D | 铻烘爴瀛斾腑蹇冨渾鐩村緞 K | 铻烘爴 瀛斿緞 d0 | 铻烘爴 | |||||||
| n錛堜釜錛?/span> | Th. | |||||||||
65 | 76 | 185 | 145 | 18 | 8 | M16 | 122 | 300 | 25.0 | 14.8 |
80 | 89 | 200 | 160 | 138 | 16.7 | |||||
100 | 108 | 220 | 180 | 158 | 24.0 | |||||
125 | 133 | 250 | 210 | 188 | 30.7 | |||||
150 | 159 | 285 | 240 | 22 | M20 | 212 | 37.8 | |||
200 | 219 | 340 | 295 | 268 | 47.1 | |||||
250 | 273 | 395 | 350 | 12 | 320 | 65.3 | ||||
300 | 325 | 445 | 400 | 370 | 370 | 32.5 | 77.5 | |||
350 | 377 | 505 | 460 | 16 | 430 | 95.6 | ||||
400 | 426 | 565 | 515 | 26 | M24 | 482 | 108.9 | |||
450 | 480 | 615 | 565 | 20 | 532 | 124.8 | ||||
500 | 530 | 670 | 620 | 585 | 153.7 | |||||
600 | 630 | 780 | 725 | 30 | M27 | 685 | 192.7 | |||
700 | 720 | 895 | 840 | 24 | 800 | 234.6 | ||||
800 | 820 | 1015 | 950 | 33 | M30 | 905 | 600 | 65.0 | 423.3 | |
| 900 | 920 | 1115 | 1050 | 28 | 1005 | 524.5 | ||||
| 1000 | 1020 | 1230 | 1160 | 36 | M33 | 1110 | 597.9 | |||
| 1200 | 1220 | 1455 | 1380 | 39 | 32 | M36 | 1330 | 833.1 | ||
| 1400 | 1420 | 1675 | 1590 | 42 | 36 | M39 | 1535 | 640 | 1089.3 | |
| 1600 | 1620 | 1915 | 1820 | 48 | 40 | M45 | 1760 | 1479.6 | ||
| 1800 | 1820 | 2115 | 2020 | 44 | 1960 | 1745.8 | ||||
| 2000 | 2020 | 2325 | 2230 | 48 | 2170 | 2079.2 | ||||
| 2200 | 2220 | 2550 | 2440 | 56 | 52 | M52 | 2370 | 2590.2 | ||
| 2400 | 2420 | 2760 | 2650 | 56 | 2570 | 2896.2 | ||||
| 2600 | 2620 | 2960 | 2850 | 60 | 2780 | 710 | 70.0 | 3058.3 | ||
| 2800 | 2820 | 3180 | 3070 | 64 | 3000 | 3342.9 | ||||
| 3000 | 3020 | 3405 | 3290 | 62 | 68 | M56 | 3210 | 3655.1 | ||
濡傞渶鏈鏂版暟鎹鑱旂郴鍦ㄧ嚎瀹㈡湇
娌沖崡鑹紬綆′笟鏈夐檺鍏徃 鎵嬫満鍙鳳細18638277136 鍥鴻瘽錛?371-64018718 浼犵湡錛?nbsp;0371-64018718 閭錛?50165323@qq.com 鍦板潃錛氬琺涔夊競瑗挎潙闀囪タ鏉?nbsp; 緗戝潃錛?a href="http://www.bj-explosive.com.cn" target="_self">http://www.bj-explosive.com.cn